深圳宏力捷電子是一家專業從事電子產品電路板設計(layout布線設計)的PCB設計公司,主要承接多層、高密度的PCB設計畫板及電路板設計打樣業務。接下來從焊接角度,聊一聊設計PCB時需要注意哪些點。
一、影響PCB焊接質量的因素
從PCB設計,到所有元件焊接完成,成為一個高質量的電路板,需要PCB工程師、焊接工藝、焊接工人等諸多環節的把控。
主要有以下影響因素:PCB圖、電路板的質量、器件的質量、器件管腳的氧化程度、錫膏的質量、錫膏的印刷質量、貼片機的程序編制的精確程度、貼片機的貼裝質量、回流焊爐的溫度曲線等等。
焊接廠本身無法逾越的環節就是PCB畫圖的。
電路設計的人很少焊接電路板,無法獲得豐富的焊接經驗,而焊接廠的工人不懂畫板,只管完成生產任務,沒有心思、更沒有能力分析造成不良焊接的原因。
這兩方面的人才各司其職,難以有機結合。
二、畫PCB時的建議
下面是一些建議,避免出現影響焊接質量的各種不良畫法。
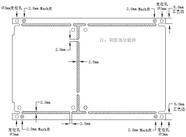
1、關于定位孔
PCB板的四角要留四個孔(最小孔徑 2.5mm),用于印刷錫膏時定位電路板。要求X軸或Y軸方向圓心在同一軸線上,如下圖:
2、關于MARK點
PCB板上要標注Mark點,用于貼片機定位。
具體位置:在板的斜對角,可以是圓形,或方形的焊盤,不要跟其它器件的焊盤混在一起。如果雙面有器件,雙面都要標注。
也可以考慮在拼版上加MARK點。
3、設計PCB時,請注意以下幾點:
a、Mark點的形狀如下圖案參考,上下對稱或者左右對稱。
b、A的尺寸為2.0mm。
c、從Mark點的外緣離2.0mm的范圍內,不應有可能引起錯誤的識別的形狀和顏色變化。(焊盤、焊膏)
d、Mark點的顏色要和周圍PCB的顏色有明暗差異。
e、為了確保識別精度,Mark點的表面上電鍍銅或錫來防止反射。對形狀只有線條的標記,光點不能識別。
如下圖所示:
4、關于留5mm邊
畫PCB時,在長邊方向要留不少于3mm的邊,用于貼片機運送電路板,此范圍內貼片機無法貼裝器件。此范圍內不要放置貼片器件。
如圖:
雙面擺件的電路板,考慮二次回流焊時,器件蹭掉、焊盤蹭掉等問題。
建議芯片少的一面,長邊離邊5mm范圍內,不要放置貼片器件,如果確實由于電路板面積受限,可以在長邊加工藝邊。
5、不要直接在焊盤上過孔
焊盤上打過孔,回流焊會有錫膏流入過孔,造成器件焊盤缺錫,引起虛焊,如下圖所示。
6、關于二極管、鉭電容的極性標注
二極管、鉭電容的極性標注符合行規,以免工人憑經驗焊錯方向。如圖:
7、關于絲印和標識
請將器件型號隱藏。尤其是器件密度高的電路板。否則,眼花繚亂影響找到焊接位置。如下圖:
也不要只標型號,不標標號。如下圖所示,造成貼片機編程時無法進行。
絲印字符的字號不宜太小,字符放置位置應錯開過孔,以免誤讀。
8、關于IC焊盤應延長
SOP、PLCC、QFP等封裝的IC,PCB上焊盤長度=IC腳部長度×1.5為適宜,便于手工用烙鐵焊接時,芯片管腳與PCB焊盤、錫三者熔為一體。如圖:
9、關于IC焊盤的寬度
SOP、PLCC、QFP等封裝的IC,畫PCB時應注意焊盤的寬度,PCB上焊盤a的寬度=IC腳部寬度(datasheet中的Nom.值),不建議加寬,保證兩焊盤間距b有足夠的寬度,避免造成連焊。如圖:
10、放置器件不要旋轉任意角度
由于貼片機無法旋轉任意角度,只能旋轉90℃、180℃、270℃、360℃。
如下圖B旋轉了1℃,貼裝后器件管腳與電路板上的焊盤,就會錯開1℃的角度,從而影響焊接質量。
11、相鄰管腳短接時應注意的問題
下圖a的短接方法,不利于工人識別,且焊接后不美觀。
如果畫圖時按圖b、圖c的方法短接并加上阻焊,焊接出來的效果就不一樣。
只要保證每個管腳都不相連,該芯片就無短路現象,而且外觀也美觀。
12、關于芯片底下中間焊盤的問題
帶肚子的芯片,建議將中間焊盤縮小,使它與周圍焊盤距離增大,減少短路的機會。如下圖:
13、厚度較高的兩個器件不要緊密排在一起
如下圖所示,這樣布板會造成貼片機貼裝第二個器件時碰到前面已貼的器件,機器會檢測到危險,造成機器自動斷電。
14、關于BGA
由于BGA封裝比較特殊,其焊盤都在芯片底下,外面看不到焊接效果。
為了返修方便,建議在PCB板上打兩個Hole Size:30mil 的定位孔,以便返修時定位鋼網。
溫馨提示:定位孔的大小不宜過大或過小,要使針插入后不掉、不晃動、插入時稍微有點緊為宜,否則定位不準。如下圖:
15、關于PCB板顏色
建議不做成紅色。紅色電路板在貼片機攝像機的紅色光源下呈白色,無法進行編程,不便于貼片機進行焊接。
16、關于大器件下面的小器件
有的人喜歡將小的器件排在同一層的大器件底下,比如:數碼管底下有電阻,如下圖:
如此排版會給返修造成困難,返修時必須先拆數碼管,還有可能造成數碼管損壞。建議將數碼管底下的電阻排到Bottom面,如下圖:
17、關于覆銅與焊盤相連影響熔錫
由于覆銅會吸收大量熱量,造成焊錫難以充分熔化,從而形成虛焊。如圖所示:
圖a中器件焊盤直接與覆銅相連;圖b中50Pins連接器雖然沒直接與覆銅相連,但由于四層板的中間兩層為大面積覆銅,所以圖a、圖b都會因為覆銅吸收大量熱量而造成錫膏不能充分熔化。
圖b中50Pins連接器的本體是不耐高溫的塑料,若溫度設定高了,連接器的本體會熔化或變形,若溫度設定低了,覆銅吸收大量熱量而造成錫膏不能充分熔化。因此,建議焊盤與大面積覆銅隔離。如圖所示:
18、關于拼板的建議及加工藝邊
總結
現如今,能用軟件進行畫圖,設計并布線PCB的工程師越來越多,設計完成,并能很好的提高焊接效率,作者認為需要重點注意以上要素。
深圳宏力捷推薦服務:PCB設計打樣 | PCB抄板打樣 | PCB打樣&批量生產 | PCBA代工代料
